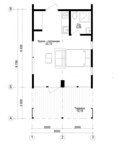
МН 1.30 – это компактный и функциональный модульный дом площадью 47 м², идеально подходящий для гостевого домика, дачи, мастерской или кемпинга. Несмотря на небольшие размеры, проект продуман до мелочей и предлагает комфортное пространство для проживания или работы.
Выбор местоположения
Мы свяжемся с Вами в течение дня.