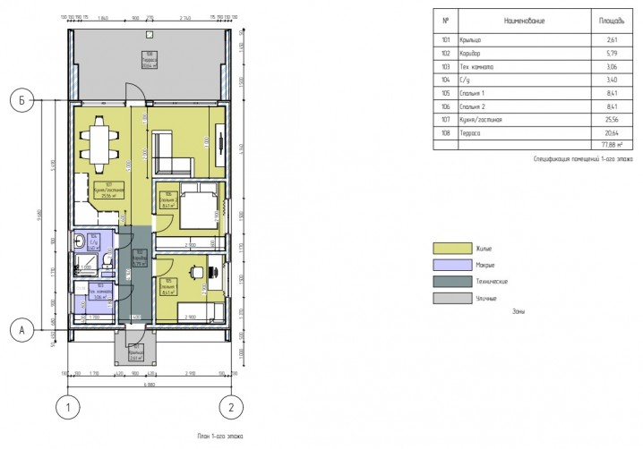
Деревянный одноэтажный дом с двухскатной крышей из 6 модулей. Высокие потолки- 3,5 м. Закрытая терраса- 20 м2. Панормное остекление. Прачечная. Внутренняя отделка white box. Дом идеален для комфортного круглогодичного проживания большой семьи.
Выбор местоположения
Мы свяжемся с Вами в течение дня.