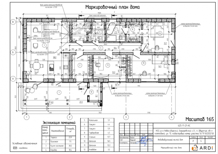
Здание представляет собой одноэтажный жилой дом. В доме запроектированы прихожая, кухня-гостинная, котельная, два санузла, спальня, две детских комнаты, и терраса. Кровля дома - плоская, не эксплуатируемая. Фундамент буронабивные сваи с ростверком.
Выбор местоположения
Мы свяжемся с Вами в течение дня.