В продаже ДМК 129.6
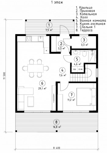
Мегапопулярный дом для большой и дружной семьи. В доме предусмотрены 4 полноценные спальные комнаты и очень большая гостинная - где поместится вся семья за вечерним ужином. Терраса 16,8 м.кв.
Выбор местоположения
Мы свяжемся с Вами в течение дня.